WYJ ĄTKOWE MIESZKANIE POŁOŻONE W JEDNEJ Z NAJBARDZIEJ PRESTIŻOWYCH LOKALIZACJI W WARSZAWIE
(English below)
LOKALIZACJA
Rejon Rynku Nowego Miasta to wyjątkowa okolica opisywana przez poetów, malowana akwarelą, dzisiaj odwiedzana przez turystów i zakochanych szukających pięknych widoków.
Nad Bulwary Wiślane z parkiem fontann czy pod Zamek Królewski dojdziemy stąd w kilka minut.
Pomimo lokalizacji w sercu miasta, okolica jest cicha, bezpieczna i spokojna.
KAMIENICA
Kamienica w której znajduje się prezentowane mieszkanie została zniszczona w trakcie Powstania Warszawskiego. Pozostała jedynie część parteru. Dokładnie ta w której znajduje się mieszkanie, reszta została odbudowana w 1953 r.
Do budynku przechodzi się przez wewnętrzny dziedziniec oddzielony od ulicy przejściem z przepiękną bramą.
Klatka schodowa wita nas eleganckim wykończeniem i stonowanymi kolorami.
MIESZKANIE
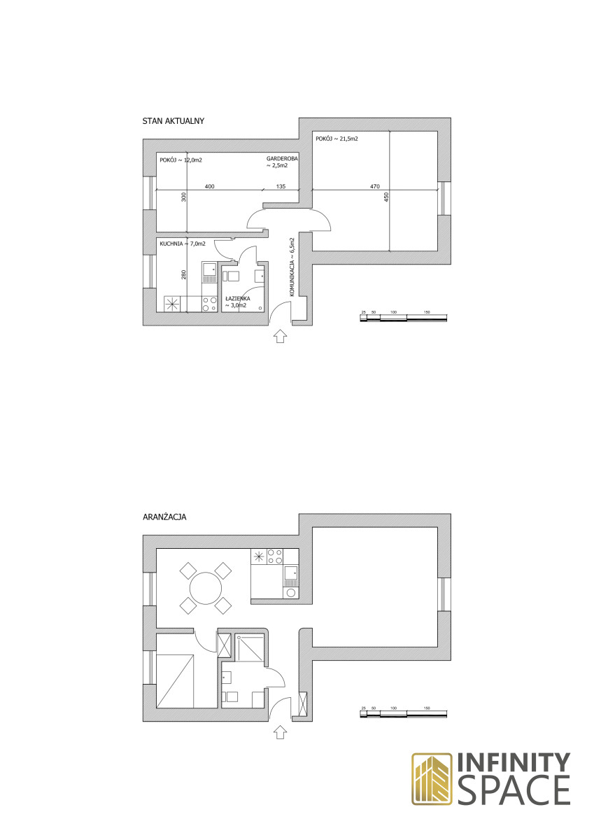
Mieszkanie, o powierzchni blisko 53 m2, jest dwupokojowe z osobną kuchnią i łazienką. Ma przejrzysty układ i dobrą orientację wg. stron świata. Można je w prosty sposób zaadaptować do współczesnych standardów lub przeprojektować zamieniając w apartament, biuro adwokata czy gabinet psychologiczny. Jego wysokość czyli 3 m sprawia, że mieszkanie jest jeszcze bardziej przestrzenne. Ogrzewanie z sieci miejskiej, gaz, ciepła woda (piec gazowy).
Do lokalu przynależy duża piwnica w której kiedyś znajdowała się ciemnia fotograficzna (opłata ujęta w czynszu).
KOMUNIKACJA
Kolej, metro, tramwaje, autobusy, również ścieżki rowerowe i ciągi piesze są blisko albo bardzo blisko.
CENA
1 180 000 PLN
Zapraszam do obejrzenia mieszkania, będzie mi bardzo miło spotkać się i osobiście przedstawić uroki tego miejsca.
Mieszkanie dostępne od zaraz!
Kuba Stankiewicz
+48 577 522 894
j.stankiewicz@infinityspace.pl
--- ENGLISH DESCRIPTION ---
AN EXCEPTIONAL APARTMENT LOCATED IN ONE OF THE MOST PRESTIGIOUS LOCATION IN WARSAW
LOCATION
Rynek Nowego Miasta area is a unique neighborhood described by poets, painted in watercolors, today visited by tourists and lovers looking for beautiful views.
The Vistula Boulevards with their fountain park and the Royal Castle are just a few minutes' walk away.
Despite its location in the heart of the city, the neighborhood is quiet, safe, and peaceful.
BUILDING
The tenement house in which the presented apartment is located was destroyed during the Warsaw Uprising. Only part of the first floor remains. Exactly the one in which the apartment is located, the rest was rebuilt in 1953.
One enters the building through an inner courtyard separated from the street by a passageway with a beautiful gate.
The staircase greets us with elegant finishes and subdued colors.
APARTMENT
The apartment, nearly 53 sqm, is a two-bedroom with a separate kitchen and bathroom. It has a clear layout and good orientation according to the sides of the world. It can be easily adapted to modern standards or redesigned turning it into an apartment, lawyer's or psychologist's office. Its height, which is 3 meters, makes the apartment even more spacious. Heating from the municipal network, gas, hot water (gas stove).
The apartment includes a large basement where the photographer's darkroom used to be (fees included in the rent).
COMMUNICATION
Rail, subway, streetcars, buses, also bicycle paths and pedestrian routes are close or very close.
PRICE
1 180 000 PLN
I invite you to view the apartment. I would be delighted to meet you and personally show you the charms of this place.
Apartment available immediately!
Kuba Stankiewicz
+48 577 522 894
j.stankiewicz@infinityspace.pl
Wyjątkowe mieszkanie | Rynek Nowego Miasta
lokalizacja: Warszawa, Rynek Nowego Miasta
1 180 000,00 PLN
22 323,12 PLN
Dane szczegółowe
- Typ transakcji: sprzedaż
- Typ nieruchomości: Mieszkanie
- Lokalizacja: Warszawa Śródmieście Nowe Miasto, Rynek Nowego Miasta
- Powierzchnia:52,86 m2
- Liczba pokoi: 2
- Rok budowy: 1953
- Piętro: 0 z 3
- Numer oferty: INFINITY681570
- Cena: 1 180 000,00 PLN
- Cena za m2: 22 323,12 PLN
Opis nieruchomości
Film o nieruchomości
Adres strony www: https:// NULL
Kontakt do opiekuna:
Infinity Space